

La constante investigación sobre nuevos modelos habitacionales encuentra en Casa VA un laboratorio de experimentación para el desarrollo de atrevidas estrategias. Esta vivienda, caracterizada por su peculiar geometría y sus reducidas dimensiones, parte de un planteamiento que profundiza sobre conceptos basados en el diálogo entre opuestos.

Esta confrontación de ideas, tanto a nivel teórico como estético, guían la propuesta hasta la culminación de una tipología propositiva y atípica. El principal deseo del proyecto se basa en la optimización de la superficie con el fin de alcanzar un espacio flexible y multifuncional. Para lograrlo, se analiza el potencial de un recinto que, si bien es limitado en extensión, encuentra una evidente relación con el exterior.



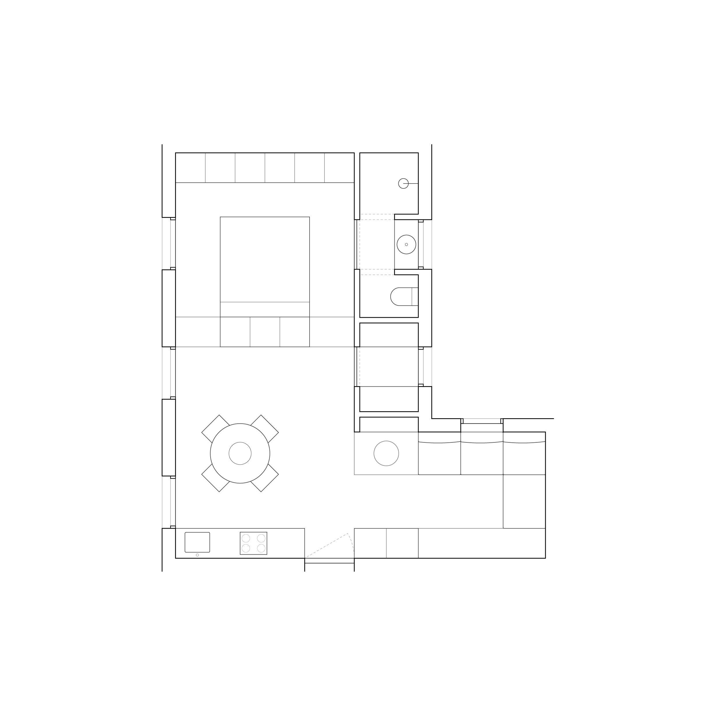
Las seis grandes aperturas que se disponen en tres de los lados de la vivienda inundan de luz el interior y ofrecen un tablero de juego polivalente. Este punto de partida permite trabajar sobre la idea de un espacio abierto en el cual, a través de la creación de diferentes niveles, se acotan distintos espacios. La construcción de este juego de alturas ayuda en el desarrollo de un paisaje doméstico donde cada elemento nace de la propia arquitectura.

Los zócalos de granito actúan de soporte y aguardan la llegada de diversas piezas de diseño: sofá, cama, cocina, armario… Estas colonizan el espacio y dan carácter a un ambiente uniforme donde cada elemento queda perfectamente integrado en el espacio. Esta concepción de la vivienda como soporte, permite la creación de un contenedor neutro pero a la vez expresivo.



Los pocos y selectos materiales utilizados proponen una mezcla entre superficies metálicas, zócalos de piedra natural y suelos de madera cálida que se traducen en un ambiente elegante y sofisticado. La homogeneidad de este entorno se altera mediante la inclusión de piezas de diseño concebidas en diferentes formatos, principalmente mobiliario, iluminación y arte.

El papel de estos elementos se entiende fundamental ya que, gracias a su color, proponen un interesante diálogo con la atmósfera que le rodea. Es el arte, concebido en diferentes formatos y entendido como un orden cambiante, el que activa el espacio y termina construyendo la identidad de esta singular vivienda.





