

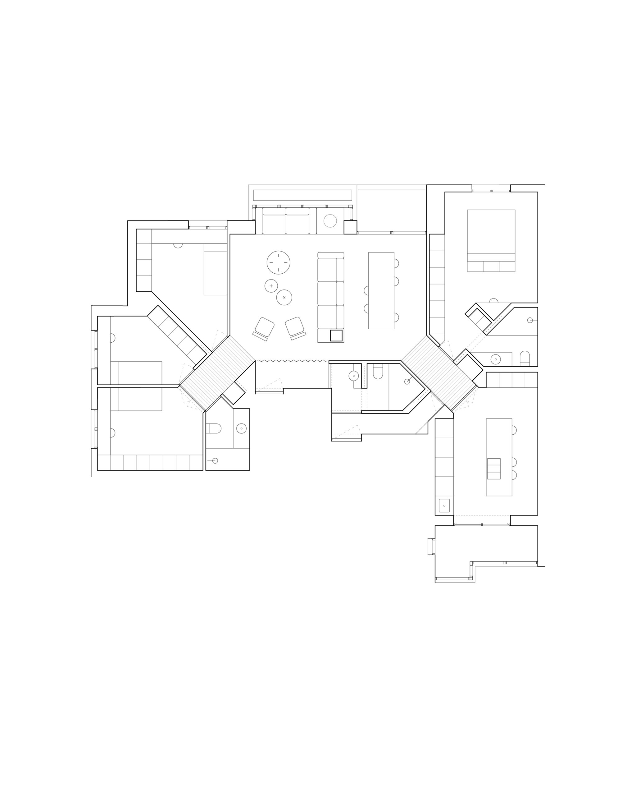
La principal estrategia se basa en una composición definida mediante dos líneas que se giran 45º. Esto da lugar a dos diagonales de notable presencia que aportan un orden singular. La intersección de estos ejes confluye en el salón, el cual es concebido como el principal espacio de la vivienda. Esta zona de día se erige como el centro de la casa y desde ella se conecta con cada una de las estancias que definen la vivienda.

Esta zona de día se erige como el centro de la casa y desde ella se conecta con cada una de las estancias que definen la vivienda. Por un lado, la diagonal izquierda da acceso a una zona de noche que alberga tres dormitorios. Por otro, la diagonal derecha conecta con la cocina y con el dormitorio principal. De este modo se consigue una organización en la cual todas las estancias buscan abrirse hacia el perímetro exterior.



La calidez con la que se concibe el espacio se consigue por medio de la madera. Los revestimientos de suelos y paredes se combinan a su vez con paños de piedras y aluminio. La estética general de la vivienda apuesta por el uso de materiales naturales y nobles.





